• HOME
  • 勝手口ゴミ箱分別ストッカー

第7回受賞作品(2006年)

イレクター作品大賞
テーマ:イレクターオリジナル作品大募集!
勝手口ゴミ箱分別ストッカー
After(製作後)

グッジョブで投稿者を応援!

グッジョブ!

会員登録してお気に入りに保存しよう!

お気に入り

ボタンの説明を見る

  • グッジョブとは

    投稿者を応援するボタンです。

  • お気に入りとは

    マイページにお気に入りした作品が保存されます。
    ※会員ユーザーのみ

作品PR
  • Before(製作前)
    勝手口と隣家の間隔が大変狭く、ゴミペールを置くスペースが無かったので、イレクターでストッカーを作成し、ゴミ箱を立体的に置けるようにしました。
    勝手口を挟んで、両側に計5個のゴミ箱を収納できます。下部には灯油缶なども収納できます。
    屋根には波板を付けて雨を避け、室内と同じ高さに踏み板を設けており、屋外ながら土足に履き替えることなく、容易にゴミを分別格納できます。
イレクター大賞選考委員からコメント

イレクター大賞おめでとうございます。
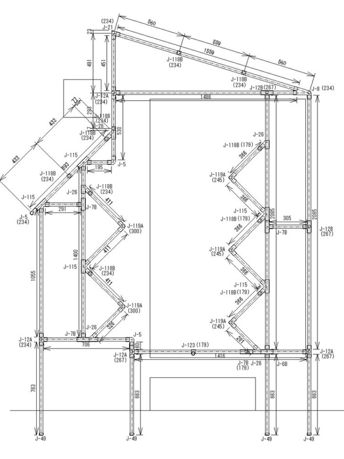
場所が狭くて苦労されたようですが、写真では用途がはっきり分かりませんでした。
図を見て説明を読んで、狭い場所を使った分別ストッカーの形が分かりました。
狭い場所を有効に、短所を長所にしてしまいました。
形もユニークで使い勝手も良さそうです。

グッジョブで投稿者を応援!

グッジョブ!

会員登録してお気に入りに保存しよう!

お気に入り
第7回受賞作品(2006年)

当ウェブサイトでは、お客様の利便性の向上およびサイト改善のためにクッキーを利用しています。
クッキーの利用にご同意いただける場合は、「同意する」ボタンを押してください。
詳細につきましては、クッキーポリシーをご確認ください。

同意する